ჩაბარების ვადა:
31 ოქტომბერი 2025, 18:00
სტატუსი:
დასრულებულიT28191 - ფასთა გამოკითხვა შენობის ლითონის ბაქნის, მოაჯირების და კიბეების დამზადებასა და მონტაჟზე
- გამომცხადებელი: RMG Copper
- შესყიდვის ტიპი: განცხადება
- წინადადების მიღება მთავრდება: 31 ოქტომბერი 2025 დრო 18:00
გთხოვთ იხილოთ განახლებული ინფორმაცია: ტენდერის დასრულების ვადად განისაზღვრა 31 ოქტომბერი.
ფასთა გამოკითხვის აღწერილობა:
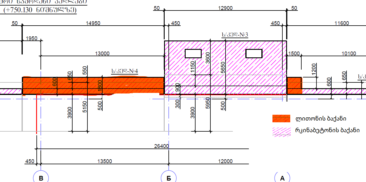
სს არ ემ ჯი კოპერი აცხადებს ფასთა გამოკითხვას შენობის ლითონის ბაქნის, მოაჯირების და კიბეების დამზადებასთან და მონტაჟთან დაკავშირებით.
- კომერციული წინადადებების მიღების ბოლო ვადა: 31.10.2025 18:00 საათი
- კონტრაქტორების შერჩევის პროცესში მონაწილე კომპანიები ადასტურებენ თავიანთ თანხმობას ქვემოთ ჩამოთვლილი პირობებით თანამშრომლობაზე და გამოთქვამენ მზადყოფნას, რომ უზრუნველყოფენ სამუშაოთა შესრულებას წარმოდგენილი კომერციული წინადადებისა და დოკუმენტების მიხედვით.შესაძლებელია ამ დოკუმენტში წარმოდგენილი ინფორმაციის მეტად დეტალიზირება და დაზუსტება ორგანიზატორის მიერ.
- პროცესში მონაწილეობის მსურველმა კომპანიამ უნდა წარმოადგინოს იურიდიული სტატუსის დასადგენად საჭირო დოკუმენტაცია და კომერციული წინადადება
მონაწილემ უნდა წარმოადგინოს კომერციული წინადადება შემდეგი პირობების გათვალსიწინებით:
- ენა : ქართული/ინგლისური/რუსული
- კომერციულ წინადადებაში წარმოდგენილი ფასები ფიქსირებული უნდა იყოს ხელშეკრულების მოქმედების განმავლობაში.
- პრეტენდენტის მიერ წარმოდგენილი კომერციული წინადადება თანმხლები დოკუმენტაციით უნდა იყოს ხელმოწერილი და ბეჭედდასმული უფლებამოსილი პირის მიერ.
- კომერციული წინადადება, რომელიც არ აკმაყოფილებს აღნიშნულ მოთხოვნებს, არ იქნება განხილული.
კომერციული წინადადება უნდა მოიცავდეს შემდეგი სახის ინფორმაციას:
- მომსახურების ღირებულება;
- ანგარიშსწორების პირობა;
- განახლებული ამონაწერი საჯარო რეესტრიდან;
- ინფორმაცია აღნიშნულ სფეროში კომპანიის გამოცდილების შესახებ;
- რეკვიზიტები (მისამართები, როგორც იურიდიული ასევე ფიზიკური, ფაქტიური, ელექტრონული მისამართი, საბანკო რეკვიზიტები და სხვა.)
- შესრულებული მსგავსი სამუშაოების სია
წინადადების წარდგენისას აუცილებელია მიუთითოთ ფასთა გამოკითხვისთვის მინიჭებული კოდი.
კომერციული წინადადებები ძალაში იქნება კონტრაქტორის შერჩევის პროცესის დასრულებამდე. აღნიშნული პროცესი დასრულებულად ჩაითვლება მას შემდეგ, რაც ხელშეკრულებები გაფორმდება მხარეებს შორის.
- მონაწილე კომპანიის კომერციული წინადადება განხილული იქნება, როგორც საფუძველი კონტრაქტორის შერჩევის პროცესში პოტენციური პრეტენდენტის გამოვლენისათვის.
- ანტიკორუფციული პირობები: პოტენციური პრეტენდენტი, ხელშეკრულების გაფორმების შემთხვევაში ვალდებულია დაემორჩილოს ანტიკორუფციულ პირობებს, რომლებიც წარმოდგენილია დანართში N1
- კომერციული წინადადების ჩაბარების პირობები: ყველა კომერციული წინადადება წარმოდგენილი უნდა იყოს შემდეგ ელექტრონულ მისამართზე: procurement@richmetalsgroup.com
საკონტაქტო ინფორმაცია:
ქეთა ალექსი-მესხიშვილი
ელ-ფოსტა: kaleksimeskhishvili@richmetalsgroup.com
ტელ: +995 595 511 21 00 35
ტენდერის კატეგორია:
- 44100000 სამშენებლო მასალები და დამხმარე სამშენებლო მასალები
- 44200000 სტრუქტურული მასალები
- 45300000 სამშენებლო-სამონტაჟო სამუშაოები
დოკუმენტაცია
15 001-ПД-АР-1 ред2
15 001-ПД-АР-1 ред2
16 001-ПД-АР ред2
16 001-ПД-АР ред2
ბაქანი ред2
ბაქანი ред2
ტექნიკური დავალება платформа,перила и лестница ред2
ტექნიკური დავალება платформа,перила и лестница ред2
ფასთა-გამოკითხვა-შენობის-ლითონის-ბაქნის-მოაჯირების-და-კიბეების-დამზადებასთან-და-მო
ფასთა-გამოკითხვა-შენობის-ლითონის-ბაქნის-მოაჯირების-და-კიბეების-დამზადებასთან-და-მო